OK I found my camera!!!!
Here is what happened today:
The back porch floor was removed and leveled and new walls were installed where there were once only screens so the new kitchen can be installed. Tomorrow the new header should go in and the old exterior wall to the old kitchen will be removed.
The doors have arrived and I am so excited about the front door! I can hardly wait to see it go up! It is a typical craftsman style with the dentil molding.
Here are the pictures from today. I wish it wasn't the end of summer.
Julie
The story of a little cottage on Lake Michigan in South Haven moving to a new site!
Thursday, September 20, 2012
Wednesday, September 19, 2012
OK Lot's of things have been happening but many aren't the best photo opportunities! AND I can't find my camera so I have to take pictures with my phone - (which I don't like to do).
So here is what has happened since my last post:
Most of the new windows are installed, the electrical inspector was here and we are ready to go with our underground service, we have a landscaping plan, the insulation company was here today and the demo that had to happen for the new kitchen is in full swing!
Here are some pictures from today:
Our contractor, Lenny Cericola and his team from Dream Home Development, Inc. are leveling the old porch, tearing out a wall and putting in a header so we can have a beautiful, new kitchen!
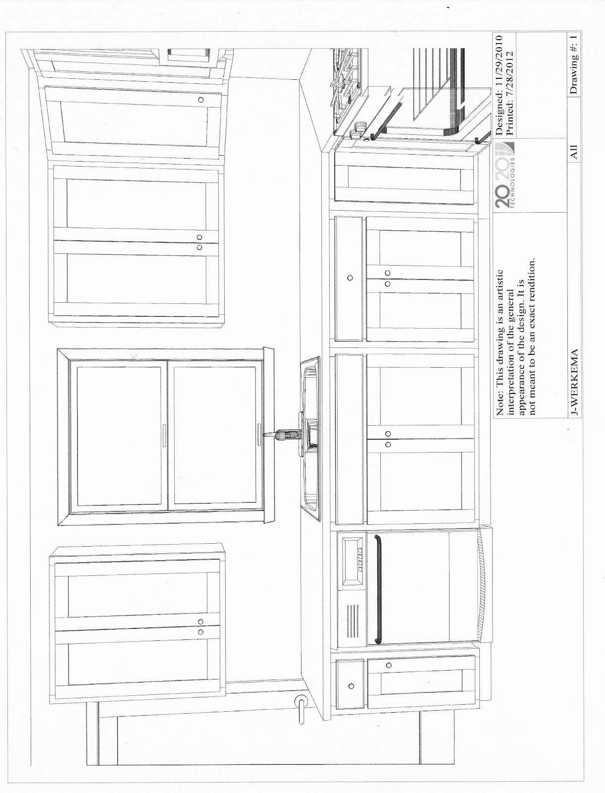
The cabinets are supposed to be delivered on September 24th!
That window in the picture on the lower floor is for the new master bathroom. We got an awesome claw foot tub for it! It will go well with the white subway tile shower.
Here are the insulation guys bringing the house up to the right R values today.
So here is what has happened since my last post:
Most of the new windows are installed, the electrical inspector was here and we are ready to go with our underground service, we have a landscaping plan, the insulation company was here today and the demo that had to happen for the new kitchen is in full swing!
Here are some pictures from today:
Our contractor, Lenny Cericola and his team from Dream Home Development, Inc. are leveling the old porch, tearing out a wall and putting in a header so we can have a beautiful, new kitchen!
The cabinets are supposed to be delivered on September 24th!
That window in the picture on the lower floor is for the new master bathroom. We got an awesome claw foot tub for it! It will go well with the white subway tile shower.
Here are the insulation guys bringing the house up to the right R values today.
Next week the crew will be installing siding, Koops will be drilling the well, the electricity should be on and hopefully I will find my camera!
Julie
Don't forget to go to the Dedication for the Casco Township Nature Preserve on Friday at 11:00am!
Wednesday, September 12, 2012
The concrete has been poured for the lower level and now you can really see how the floor plan is going to look. We have decided on a wet bar for the living area too. That is the downstairs fireplace in the middle.
Rob Maynard's crew worked on finishing up the roof construction of the new front porch today and subcontractors, Choice Construction almost have the shingles on the roof almost completed! It looks great!
This is Mike the painter working on the high spots!
Jason from Consumers Energy was here today to measure for underground service.
The Big Lake is too rough to take the boat out today so I took pictures from the bluff instead.
Against my warnings, Rob finally gave in and let Mike sit in the John Deere today!
Rob Maynard's crew worked on finishing up the roof construction of the new front porch today and subcontractors, Choice Construction almost have the shingles on the roof almost completed! It looks great!
This is Mike the painter working on the high spots!
Jason from Consumers Energy was here today to measure for underground service.
The Big Lake is too rough to take the boat out today so I took pictures from the bluff instead.
Against my warnings, Rob finally gave in and let Mike sit in the John Deere today!
Thursday, September 6, 2012
So the beams are removed, the plumbers have put the drains in the lower level and the plumbing inspector will be here tomorrow!
The trusses for the new porch/room on the front of the house were placed today and the room has been framed.
For a while the fog was so thick coming in off the lake today it looked like a storm or a fire! It was just rolling up the bluff but the sun burned it off and it is a beautiful day here!
The lower level floors will be poured as soon as the plumbing inspector gives the ok! The kitchen is set to be delivered on September 24th! I can hardly wait! Kevin from Classic Stone Creations came out to check out the site and do some measurements for the granite counters and maybe some ideas for the downstairs fireplace.
Things are really starting to move now!
Here are some pictures of the house and the garage on the next lot. Mike and Harry did a lot of work on it and it looks fantastic! Of course, you'll see in one of the pictures that Mike wasn't working too hard today!
Julie
The garage:
Mike "working" today:
The trusses for the new porch/room on the front of the house were placed today and the room has been framed.
For a while the fog was so thick coming in off the lake today it looked like a storm or a fire! It was just rolling up the bluff but the sun burned it off and it is a beautiful day here!
The lower level floors will be poured as soon as the plumbing inspector gives the ok! The kitchen is set to be delivered on September 24th! I can hardly wait! Kevin from Classic Stone Creations came out to check out the site and do some measurements for the granite counters and maybe some ideas for the downstairs fireplace.
Things are really starting to move now!
Here are some pictures of the house and the garage on the next lot. Mike and Harry did a lot of work on it and it looks fantastic! Of course, you'll see in one of the pictures that Mike wasn't working too hard today!
Julie
The garage:
Mike "working" today:
Tuesday, September 4, 2012
The Maple Grove Cottage has been lowered onto the foundation and Laraway and Sons are removing the huge steel beams that were holding her up!
Rob Maynard and his crew have done an awesome job of getting the foundation built and today are putting in drain tile and backfilling around the foundation. These guys work fast! I can hardly wait to see the new porch framing start! Here are some pictures from today's activity:
Now we are heading to Country House Furniture in South Haven to talk to Brandon about furniture for the house!
Rob Maynard and his crew have done an awesome job of getting the foundation built and today are putting in drain tile and backfilling around the foundation. These guys work fast! I can hardly wait to see the new porch framing start! Here are some pictures from today's activity:
Now we are heading to Country House Furniture in South Haven to talk to Brandon about furniture for the house!
Sunday, September 2, 2012
Subscribe to:
Comments (Atom)







